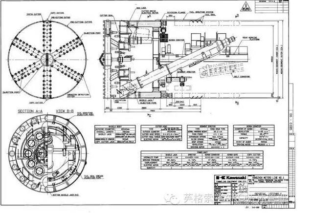
盾构机基本结构介绍
盾构机基本组成及功能
–刀具及刀具旋转部分
–推进系统
–支撑环
–盾尾及盾尾密封系统
掩护衬砌拼装,防止水和渣土从盾体尾部进入盾构机内
圆通型薄壳体,钢丝刷加钢片压板结构,内部充满高压油脂
–渣土输送机
–衬砌拼装系统
–拖车
–注脂系统
主轴承密封系统
盾尾油脂密封系统
主机润滑系统
使用气动油脂柱塞泵
–注浆系统
是衬砌与开挖面之间的缝隙得到填充
使用液压注浆泵
盾构油脂泵应用点
主驱动密封及润滑
–刀盘轴承密封 HBW
–刀盘轴承润滑 EP2

盾尾密封
盾尾与管片之间的密封 盾尾油脂

油脂输送方案推荐
根据油脂泵在盾构机的应用点,ARO可根据客户要求为其推荐以下产品和方案型号:
方案型号:SCG301BN02-V3
方案型号:SCG301BN02-V4
44:1柱塞泵组件:
- 型号:TPD844S51HH47AA2
65:1柱塞泵组件
- 型号:TPD665S51HH47AA2
80:1柱塞泵组件
-型号:TPD880S51HH47AA2
美国英格索兰ARO气动隔膜泵--东莞市瑞诚机电设备有限公司一级经销商,期待你的来电咨询洽谈 0769-82893683 何先生 13825712835



